航波 Sailing Wave

Project Type  住宅空間 中古屋大樓/老屋翻新 
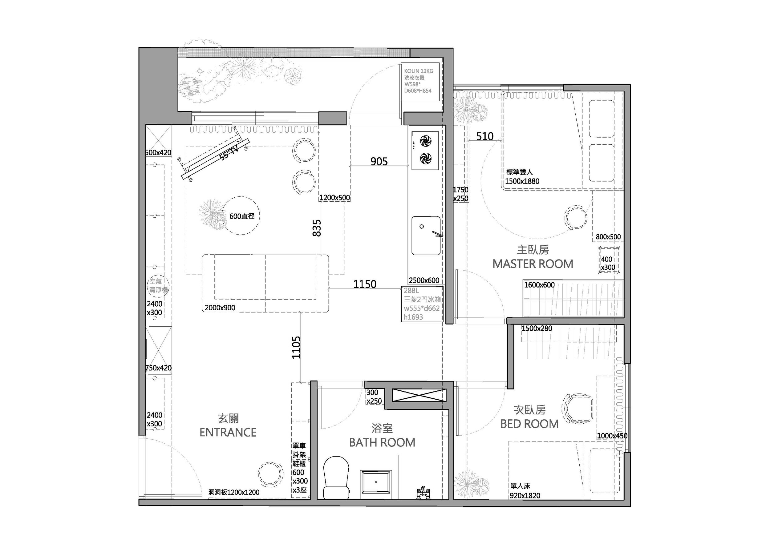
Location 臺灣高雄市 
Area 15坪
Designer 李佩珊

15坪的老屋翻新,不封天花,明管裸露,黑灰為底,不鏽鋼映光。空間不被過度定義,音樂、單車與日常自然流動。在節奏裡生活,在留白中前行。

A 28-year-old navy officer’s 49m² renovation. Exposed pipes, black and grey tones, stainless steel accents. A restrained yet warm space where music, cycling, and daily life flow in rhythm.

Previous
Previous

Afterglow Wave

Next
Next

Greenery Wave