A GRILL
Project Type 商業空間 老屋翻新
Location 臺灣高雄市
Area 125坪
Designer 李佩珊
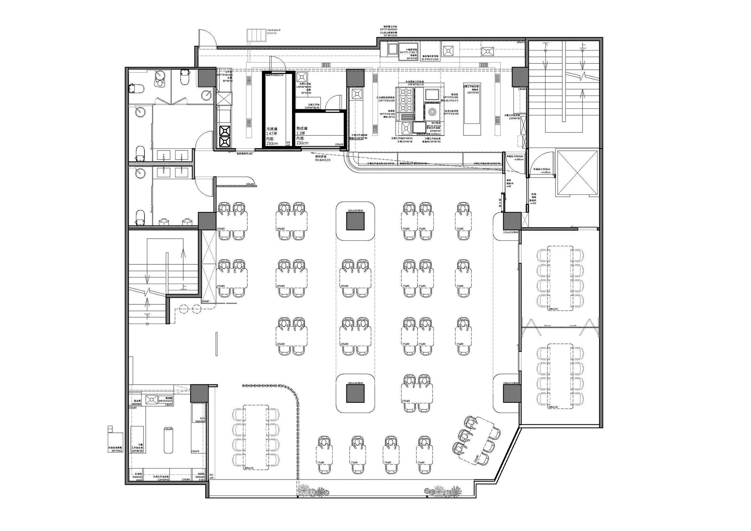
設計以「牛排」與「炙燒」為核心,運用黑灰咖色調、大理石與金屬材質,營造奢華質感。開放式廚房如舞台般展現廚藝,圓角矩形元素取自牛排橫切面,貫穿天花與桌面。橫向開窗,引入綠意,搭配格柵與不鏽鋼天花板,營造光影流動。最後畫龍點睛的是—日製窯燒手工磚與中島備餐檯的動線設計,體現對細節與味覺體驗的高度講究。
A GRILL
Project Type 商業空間 老屋翻新
Location 臺灣高雄市
Area 125坪
Designer 李佩珊
設計以「牛排」與「炙燒」為核心,運用黑灰咖色調、大理石與金屬材質,營造奢華質感。開放式廚房如舞台般展現廚藝,圓角矩形元素取自牛排橫切面,貫穿天花與桌面。橫向開窗,引入綠意,搭配格柵與不鏽鋼天花板,營造光影流動。最後畫龍點睛的是—日製窯燒手工磚與中島備餐檯的動線設計,體現對細節與味覺體驗的高度講究。